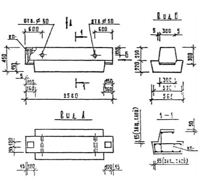
РДП 4.26 ригели

Чертеж изделия:
Характеристики изделия:
ПараметрЗначение
длина2560 мм
ширина565 мм
высота450 мм
масса1110 кг
нормативный документСерия 1.020-1/87

РДП 4.26  Ригели с двумя симметричными полками для опоры многопустотных плит покрытия Серия 1.020-1/87.