ВБН 10.33.6

Чертеж изделия:
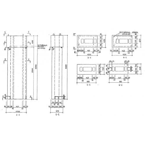
Характеристики изделия:
ПараметрЗначение
длина1030 мм
ширина620 мм
высота3300 мм
вес1650 кг
серия1.134-3

ВБН 10.33.6 Наружные вентиляционные блоки по серии 1.134-3.