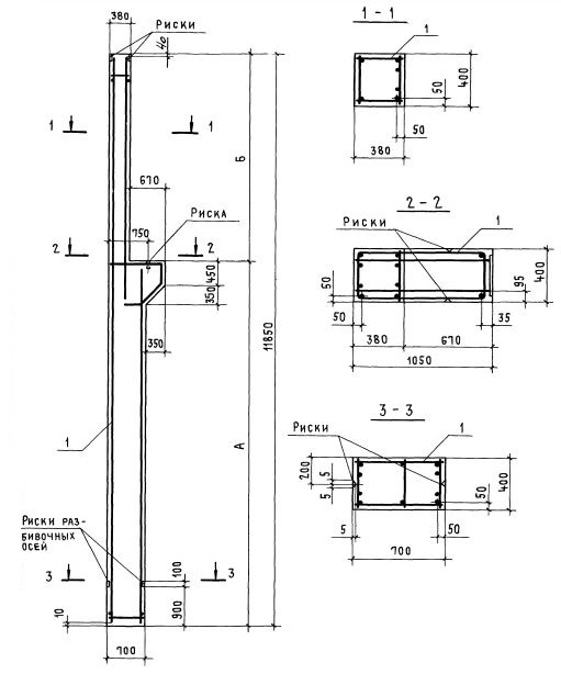
К 108

Чертеж изделия:
Характеристики изделия:
ПараметрЗначение
длина11850 мм
ширина400 мм
высота1050 мм
масса7400 кг
нормативный документСерия 1.424.1-5

К 108  Колонны крайние Серия 1.424.1-5.