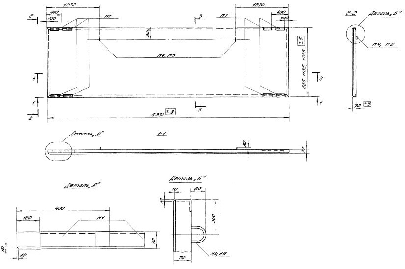
ПСЛН AV-1,2-6,35-121

Чертеж изделия:
Характеристики изделия:
ПараметрЗначение
Длина6330 мм
Ширина70 мм
Высота1185 мм
Масса1010 кг
Нормативный документСерия 1.432-10

Предварительно напряженные панели из легких бетонов, армированные сталью класса A-IV, по Серии 1.432-10.

ПСЛН AV-1,2-6,35-121  Рядовая панель в углу по торцовой стене при привязке продольной стены "250".