ПТ-Р2М

Чертеж изделия:
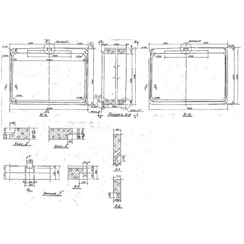
Характеристики изделия:
ПараметрЗначение
длина4320 мм
ширина3140 мм
высота2510 мм
масса17700 кг
нормативный документСерия 3.507-1

ПТ-Р2М Объемные блоки подземных тоннелей по Серии 3.507-1.