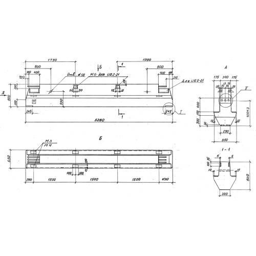
ИБ 2 ригели с полками для опирания плит
Характеристики изделия:
| Параметр | Значение |
|---|---|
| длина | 5280 мм |
| ширина | 650 мм |
| высота | 800 мм |
| масса | 4250 кг |
| нормативный документ | Серия 23-1/70 |
Цена:
Рассчитать стоимостьИБ 2 Ригели с полками для опирания плит по Серии 23-1/70.
