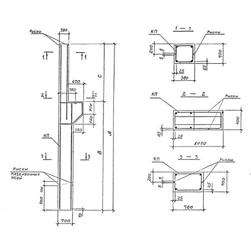
КК 120

Чертеж изделия:
Характеристики изделия:
ПараметрЗначение
длина13050 мм
ширина400 мм
высота1050 мм
вес8400 кг
Шифр2021-164.1

КК 120 Колонны по Шифру 2021-164.1.