А 32
Характеристики изделия:
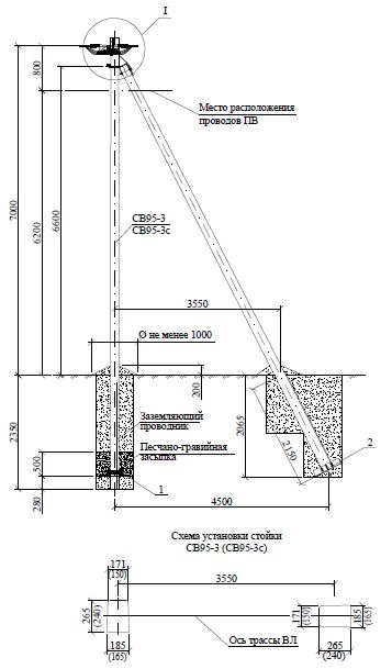
| Параметр | Значение |
|---|---|
| длина | 9250 мм |
| ширина | 185 мм |
| высота | 265 мм |
| масса | 900 кг |
| нормативный документ | Шифр 26.0085 |
Цена:
Рассчитать стоимостьА 32 Анкерные двухцепные опоры (концевые) Шифр 26.0085.
| Параметр | Значение |
|---|---|
| длина | 9250 мм |
| ширина | 185 мм |
| высота | 265 мм |
| масса | 900 кг |
| нормативный документ | Шифр 26.0085 |
А 32 Анкерные двухцепные опоры (концевые) Шифр 26.0085.